Geräumige Innenstadtwohnung in Aachen – perfekt für WGs und Familien
F24 Wohneinheit 03
Bei Anmietung bis spätestens zum 01.02.2026 gewähren wir zwei Monate Mietfreiheit, bei einer Mindestmietzeit von 12 Monaten.
115
m2
4
Zimmer
EG
. Etage
Baujahr 2025
Personenaufzug
Fußbodenheizung
ebenerdige Dusche
stilvolle Einrichtung
Einbauküche
Erstbezug
Bezugsfrei ab
15.11.2025
WG geeignet
Dieses Apartment ist bereits vermietet.
Objektbeschreibung
Bei Anmietung bis spätestens zum 01.02.2026 gewähren wir zwei Monate Mietfreiheit, bei einer Mindestmietzeit von 12 Monaten.
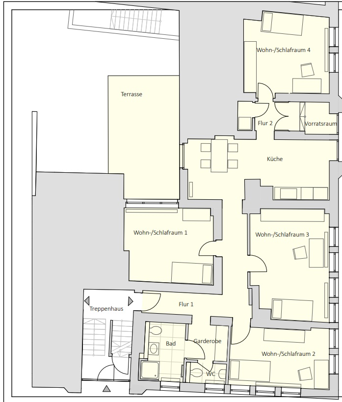
Hier trifft Großzügigkeit auf Eleganz mit ca. 115 m2 (125 m2 inkl. Terrasse): Vier helle Wohn-/Schlafräume, eine offene Küche, Bad, WC, zwei Flure, Garderobe und ein Vorratsraum schaffen ein Zuhause mit viel Platz und Struktur. Die Terrasse bietet zusätzlichen Freiraum. Ob als Familiennest mit viel Platz für Kinder oder als WG mit großzügigen Rückzugsorten – diese Wohnung passt sich den Bedürfnissen ihrer Bewohner an.
Erstbezug nach Umbau und Modernisierung – ein frisches, hochwertiges Wohngefühl erwartet Sie.
115,00 m2
Erstbezug nach Komplettsanierung, Einbauküche
zum 01.01.2026
Kaltmiete
1.725,00 Euro/Monat
125,00 m2 mit Terrasse
Ab voraussichtlich 01.02.2025 inkl. neuem Außenbereich und Terrasse
zum 01.02.2026
Kaltmiete
1.800,00 Euro/Monat
Nebenkosten
250,00 Euro/ Monat
Ausstattung
- Großzügige, helle Räume
- Offene Küche alsTreffpunkt
- Terrasse
Lage
Die Wohnung liegt zwischen Franzstraße und Matthiashofstraße – eine Lage, die das Beste aus zwei Welten vereint: Nähe zur lebendigen Innenstadt mit Kultur, Gastronomie und Einkaufsmöglichkeiten, und gleichzeitig Rückzugsmöglichkeiten in ruhigen Seitenstraßen und Grünanlagen. Familien profitieren von Schulen und Kindergärten in der Nähe, während Studierende die schnelle Anbindung an die RWTH und das Stadtleben genießen.
Sonstiges
Bei Anmietung bis spätestens zum 01.02.2026 gewähren wir zwei Monate Mietfreiheit, bei einer Mindestmietzeit von 12 Monaten.
Hinweis zur Vereinbarung von Besichtigungsterminen: Bitte schreiben Sie uns zunächst ausschließlich per Mail – gerne bereits mit vollständigen Unterlagen:
- Mieterselbstauskunft
- beidseitige Kopie des Personalausweises
- Gehaltsnachweise der letzten drei Monate – bei keinem Einkommen Bürgschaft
- SCHUFA-Auskunft
- Aufenthaltsgenehmigung (falls relevant)
Wir melden uns schnellstmöglich bei Ihnen zurück.
Möblierte Wohnungen in Aachen: Rundum-sorglos Wohnen mit unseren All inclusive-Apartments
Adalbertstraße 128
37 Wohneineinheiten
Erstbezug
Baujahr 2025
Nebenkosten inklusive
High-Speed-Internet inklusive
Hausmeisterservice
Im Herzen der Stadt
Cradle to Cradle inspiriertes Design & Build

Designausstattung



Moderne und durchdachte Apartments - einziehen & wohlfühlen!
In der Adalbertstraße 128 ist 2025 ein modernes Wohnkonzept für alle, die urbanes Leben lieben, entstanden. Das Neubauprojekt bietet 37 hochwertige, voll möblierte Apartments mit smarter Raumaufteilung – ideal für Berufstätige, die Komfort und Stil schätzen. Unsere größeren Apartments sind als WG eingerichtet.
Zentrumsnah: In wenigen Minuten erreichst du das Aachener Stadtzentrum und das Aquis Plaza mit vielfältigen Einkaufsmöglichkeiten - inkl. Supermarkt (Rewe) & Drogerie (DM).
Perfekte Anbindung: Mehrere Bus- und Bahnlinien sind fußläufig erreichbar. Die Bushaltestelle ist direkt vor der Haustür. Der Hauptbahnhof ist zu Fuß in 10 Minuten zu erreichen.
Freizeit & Lifestyle: Fitnessstudios, Parks, Cafés, Bars, Buchhandlungen & Modegeschäfte – alles direkt um die Ecke.
Work-Life-Balance: Ob Homeoffice oder After-Work-Drinks – hier bist du mittendrin im Leben.
Smartes Wohnen mit durchdachter Ausstattung – ohne versteckte Kosten.
Perfekte Raumaufteilung: Offener Wohn-, Ess- und Schlafbereich für eine angenehme Atmosphäre.
Möblierung mit Zukunft: Nachhaltig nach dem Cradle-to-Cradle-Prinzip vom Schreiner entworfen – inklusive Kitchenette, Bett, Schränken, Tisch und Stühlen.
Wohlfühlböden: Warmer, robuster Linoleum für ein angenehmes Wohngefühl.
Zuhause draußen: Einige Apartments verfügen über einen Balkon oder eine Terrasse für entspannte Stunden.
Perfekte Verbindung: Glasfaserinternet ist in jeder Wohnung verfügbar und bereits in der Miete enthalten.
Fußbodenheizung mit Wärmepumpe & Photovoltaik: Umweltfreundlich, effizient & mit tollen Raumklima heizen.
All-inclusive-Miete: Keine versteckten Kosten – Strom, Internet und Nebenkosten sind bereits in der Miete enthalten.






